Projects
About Me
Contact
Projects
About Me
Contact
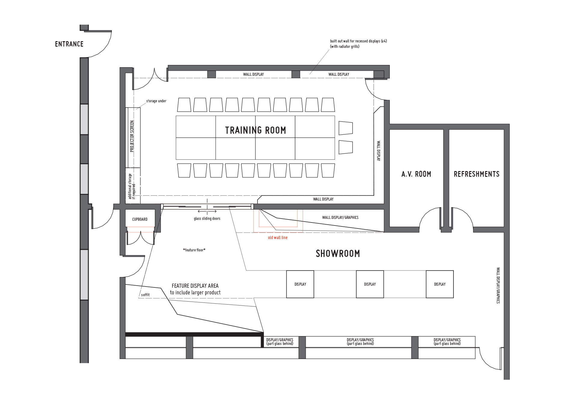
Capital Safety
↑
Back to Top
Insert copy here, which should vary depending on your region.
Accept